The Lofts Ekkamai รีวิวคอนโดจาก YuSabuy

· 5 min read

อยู่สบายพาไปดูคอนโด The Lofts Ekkamai  คอนโดใหม่ล่าสุดจาก Raimon Land ครับ   ที่ตั้งของโครงการอยู่บนถนนสุขุมวิทห่างจาก BTS เอกมัย 200 เมตร เป็นระยะเดินได้สบายๆซึ่งแน่นอนว่าทำเลแบบนี้ราคาคงไม่ถูกแน่ๆทาง  Raimon Land  เปิดตัวคอนโด The Lofts Ekkamai มาด้วยราคาเฉลี่ยต่ำสุดที่ 140,000 บาทต่อตารางเมตรครับ  ปกติแล้ว Raimaon Land  นี่เขาถนัดทำของแพงๆกับตลาดบนๆอยู่แล้วครับ  เอาชื่อ 185 ราชดำริ กับ The River เป็นประกันได้  แถม The Lofts นี่ยังเป็นโปรเจคเปิดตัวรับ CEO คนใหม่หลังจากที่กลุ่มทุนจากสิงคโปร์เข้ามาซื้อกิจการไปเมื่อเดือนก่อนด้วยครับ

คอนโด The Lofts Ekkamai  ที่เพิ่งเปิดตัวใหม่จะเป็นยังไง  มาตามอ่านรีวิวจากอยู่สบายกันครับ

เริ่มจากรีวิวดูข้อมูลคอนโด The Loft กันก่อนเลย

ข้อมูลโครงการ The Loft เอกมัย

ออกเดินทางกันได้แล้ว พิกัดที่ >> 13.718294,100.5853638

ตามมาเลยครับ

เริ่มเดินทาง  ดูทำเล

อยู่สบายออกเดินทางไปดูคอนโด

ที่ตั้งของโครงการนั้นใครที่ใช้ชีวิตในเมืองบ่อยๆคงรู้จักกันดีครับ  อยู่ใกล้ๆกับ BTS เอกมัย  ถ้าเดินทางมาโดยใช้ BTS พอถึงสถานีเอกมัยก็ให้ลงฝั่งวัดธาตุทอง  แล้วเดินไปประมาณ 200 เมตรครับ  จะอยู่เลยโรงพยาบาลสุขุมวิทไป

แต่วันนี้อยู่สบายใช้เส้นทางขับรถจากซ.สุขุมวิท 21 หรือซอยอโศกนั่นเอง  โดยขับผ่านเส้นอโศกมาจนถึงแยกอโศก-สุขุมวิท  ก็ให้เลี้ยวซ้ายแล้วตรงมาเรื่อยๆ  ผ่าน BTS พร้อมพงษ์, เอ็มโพเรียม, ฺBTS ทองหล่อ  แล้วพอมาถึงแยกเอกมัยใต้ก็ให้ตรงข้ามแยกไปเลยครับ  จะเจอวัดธาตุทองแล้วก็เจอโรงพยาบาลสุขุมวิท  ก่อนจะถึงที่ตั้งคอนโด The Loft เอกมัย ตามลำดับ

ถ้าใครจะมาจากเส้นทางอื่นๆก็ไม่ยากเช่นกันครับ  เช่น จากถนนเลียบทางด่วนเอกมัย-รามอินทรา  ก็สามารถตรงเข้าเอกมัยได้เลย  พอมาถึงสุขุมวิทก็เลี้ยวซ้ายตรงบ้านไร่กาแฟเอกมัยครับ

การเดินทางมาจาก ซ.สุขุมวิท 21 (อโศก)
การเดินทางมาจาก ซ.สุขุมวิท 21 (อโศก)

สรุประยะทางจาก คอนโดมิเนียม The Loft  เอกมัย  ไปจุดสำคัญๆต่างๆในบริเวณทำเลของคอนโดให้ดูกันครับ

(อยู่สบายได้เลือกเส้นทางที่สั้นที่สุดแต่ยังเดินทางได้สะดวกมาให้ดูนะครับ)

ไปสถานี BTS เอกมัย   200  เมตร

ไป Gateway เอกมัย (เดิน) 250 เมตร , (ขับรถ)  850 เมตร

ไป Major Cineplex เอกมัย (เดิน) 400  เมตร , (ขับรถ) 1.7 กิโลเมตร

ไป ขึ้นทางด่วนที่สุขุมวิท 50   3.5  กิโลเมตร  (นับระยะถึงปากซอยสุขุมวิท 50)

มาเล่าให้ฟังว่าพื้นที่รอบๆมีอะไรบ้างครับ  โดยตำแหน่งที่ตั้งของคอนโด The Lofts ต้องถือว่าเกาะอยู่ตรง Hub  ความเจริญในย่านนี้สุดๆครับ  ด้านทิศตะวันตกเฉียงเหนือของคอนโดจะติดกับโรงพยาบาลสุขุมวิทครับ  ตรงนี้ชั่งใจลำบากเหมือนกันว่าเป็นข้อดีหรือข้อเสีย  ข้อเสียเลยคือห้องบางตำแหน่งในทิศตะวันตกเฉียงเหนือจะโดนบังวิว  แต่ข้อดีคือไม่ต้องเห็นวิวเป็นเมรุของวัดธาตุทอง   ส่วนด้านหน้าคอนโดเลยมีตึกแถวเหลืออยู่  3-4  ห้องครับ  ไม่แน่ใจว่าเจ้าของเขาไม่ขายหรือทางไรมอน แลนด์เลือกที่จะไม่ซื้อ  ซึ่งตึกแถวด้านหน้านั้นเป็นคลินิคหมอฟันแล้วก็ร้านตัดผมท่านชายครับ

ถ้ามองไปทางทิศตะวันออกเราจะเห็นคอนโด Life @ Sukhumvit ของทาง AP ครับ  แต่ตำแหน่งนั้นไม่ได้บังวิวของ The Loft เพราะตัวที่ดิน The Loft นั้นทำมุมแหลมกับถนนสุขุมวิท  ส่วนที่ดินของ Life @ Sukhumvit นั้นทำมุมฉาก  ทำให้เวลามองวิวออกไปห้องทางทิศตะวันออกเฉียงใต้ของ The Loft จะสามารถหลบมุมที่ต้องหันไปเจอ Life @ Sukhumvit โดยตรงได้ครับ

สำหรับพื้นที่ตรงแยกเอกมัยใต้  ซึ่งถือเป็น Hub ของย่านนี้นั้นอุดมสมบูรณ์มาก  มีทั้ง Gateway เอกมัย  และ Major Cineplex เอกมัยครับ  ถ้าเข้าไปในซอยเอกมัยก็มีคอมมูนิตี้มอลล์อย่าง Park Lane แล้วก็มีบิ๊กซี เอกมัยให้ซื้อของในซุปเปอร์มาร์เก็ตเข้าคอนโดได้ด้วย

คอนโดอื่นๆรอบๆโครงการที่จะมองเห็นกันก็มีหลายตัวอยู่ครับ   ที่สร้างเสร็จไปแล้วมีณุศาสิริ แกรนด์  แล้วก็ Life @ Sukhumvit  ส่วนอีกตัวที่กำลังจะขึ้น(แต่ยังไม่ได้เปิดขาย)และน่าจะมองเห็นตรงๆจากห้องในตำแหน่งทิศตะวันตกเฉียงใต้ของ The Loft คือคอนโด Rhythm 42 ของทาง AP ซึ่งจะอยู่หลัง Gateway เอกมัยเลย

พื้นที่และสภาพแวดล้อมรอบคอนโด The Loft เอกมัย
พื้นที่และสภาพแวดล้อมรอบคอนโด The Loft เอกมัย
สภาพแวดล้อมรอบๆคอนโด The Loft เอกมัย
สภาพแวดล้อมรอบๆคอนโด The Loft เอกมัย

ดูรอบๆกันเสร็จแล้ว  ก็ได้เวลาเข้าไปดูในโครงการกันครับ

เริ่มเปิดประตู  รีวิวโครงการ

พอเลี้ยวเข้าโครงการมาก็ต้องไปจอดรถด้านหลัง แล้วเดินกลับมาเข้าสำนักงานขายนะครับ แต่ถ้าใครใช้รถไฟฟ้ามา ก็เดินเข้าทางด้านหน้าได้เลย
พอเลี้ยวเข้าโครงการมาก็ต้องไปจอดรถด้านหลัง แล้วเดินกลับมาเข้าสำนักงานขายนะครับ แต่ถ้าใครใช้รถไฟฟ้ามา ก็เดินเข้าทางด้านหน้าได้เลย
ผนังอิฐเปลือยๆไม่ต้องฉาบปูน กับองค์ประกอบตกแต่งที่ดูเรียบๆโมเดรี์นในสำนักงานขายครับ
ผนังอิฐเปลือยๆไม่ต้องฉาบปูน กับองค์ประกอบตกแต่งที่ดูเรียบๆโมเดรี์นในสำนักงานขายครับ
The Loft Ekkamai เอกมัย
หน้าตาคอนโด The Loft เอกมัย

เปิดผังโครงการ

  • ดูทิศ  มองแดด  รับลม

ตัวคอนโด The Loft นั้นจะวางตามแนวทิศตะวันออกเฉียงเหนือและตะวันตกเฉียงใต้ครับ  ห้องที่รับแดดมากที่สุดจะเป็นตำแหน่งมุมอาคารด้านหน้า  ซึ่งเป็นแบบ 2 ห้องนอน (ห้องที่รับแดดเยอะสุดนี่เป็นห้องที่วิวน่าจะสวยสุดด้วยนะครับ  เรียกว่าแลกกันไปเลย)  ส่วนห้องอื่นๆทางด้านทิศตะวันตกนั้นมีระเบียงยื่นออกมาเต็มแนวซึ่งน่าจะช่วยบังแดดได้ดีอยู่ครับ  ยกเว้นห้องแบบ Duplex ซึ่งจะโดนแดดตรงๆจากความสูงของห้องอย่างแน่นอน  ระเบียงของห้องชั้นบนยังไงก็บังแดดให้ได้ไม่เยอะครับ

ผังโครงการคอนโด The Loft เอกมัย
ผังโครงการคอนโด The Loft เอกมัย
  • ดูพื้นที่ส่วนกลางและความเพียงพอในการใช้งาน

คอนโด The Lofts  เอกมัยมีลิฟต์โดยสารให้ 3 ตัวครับ  จำนวนห้อง 263 ยูนิต  พอคิดเฉลี่ยออกมาแล้วได้ตัวเลขที่ 88 ยูนิตต่อลิฟต์ 1 ตัว  เรียกว่าใช้งานกันสบายๆ  มีลิฟต์เซอร์วิสแยกต่างหาก  ซึ่งเป็นลิฟต์หน้ากว้างใช้ขนของได้ด้วย  ที่จอดรถให้มา 158 คัน  แบบไม่รวมจอดซ้อนคัน คิดตัวเลขแล้วได้ประมาณ 60%  ถ้ารวมจอดซ้อนแล้วก็น่าจะได้ประมาณ 65-70%  ซึ่งเป็นตัวเลขที่โอเคทีเดียวครับ

ด้าน Facilities อื่นๆนั้นคอนโด The Lofts เลือกที่จะยกไปไว้ชั้น 28  บนดาดฟ้าหมดเลยครับ  มีสระน้ำเกลือยาว 25 เมตร ฟิตเนส  ห้องพักผ่อน(ที่ติดกับฟิตเนส)  แล้วก็ Roof Garden  สังเกตว่ามีเก้าอี้อาบแดดเยอะมาก  น่าจะทำเพื่อต่างชาติมาเช่าหรือไม่ก็ไว้นอนดูดาวกลางคืน

แปลน Facilities โครงการ The Loft เอกมัย
แปลน Facilities โครงการ The Loft เอกมัย
ถ่ายโมเดล Facilities ชั้น 28 ดาดฟ้ามาให้ดูกันครับ
ถ่ายโมเดล Facilities ชั้น 28 ดาดฟ้ามาให้ดูกันครับ
Swimming Pool & Facilities
Swimming Pool & Facilities
Fitness
Fitness
Lobby
Lobby
  • ดูรายละเอียดและตำแหน่งห้องต่างๆในผังโครงการ

ตำแหน่งห้องแบบต่างๆในแต่ละชั้นจะเหมือนๆกันครับ  ห้องแบบ 2 ห้องนอน จะอยู่เป็นห้องมุมด้านหน้าและหลัง  โดยห้องด้านหน้าเป็นแบบห้องพื้นที่ 74 ตร.ม.  ซึ่งจะเยอะกว่าห้องด้านหลังที่มีพื้นที่ 61 ตร.ม.

ส่วนห้องแบบ  Studio , 1 ฺBedroom และ Duplex จะอยู่ตรงกลางอาคารครับ  โดยแบบ 1 ห้องนอน 45 ตร.ม.นั้นจะหันหน้าไปทางพระโขนง  ส่วน Studio และ Duplex จะหันหน้าไปทางแยกเอกมัยครับ  โดยห้องแบบ Studio จะอยู่ที่ชั้น 7-15  ส่วน Duplex จะไปเริ่มอยู่ที่ชั้น 16 ขึ้นไปครับ  ตำแหน่งรวมๆคร่าวๆนั้นดูจากแปลนด้านล่างได้เลยครับ

ประเด็นอีกอันที่ควรรู้คือเรื่องความสูงอาคารครับ  วิวฝั่งที่ติดโรงพยาบาลสุขุมวิทนั้นถ้าจะต้องการมองผ่านโรงพยาบาลไปได้ต้องชั้น 20 ขึ้นไป  (ถึงโรงพยาบาลจะมีแค่ 15 ชั้น  แต่ระยะความสูงจากพื้นถึงฝ้าเพดานนั้นมากกว่าครับ  ถ้าลองเที่ยบกับความสูงห้องของ The Lofts ที่ 2.8 เมตร  และโครงสร้างกับระยะงานระบบอีก 30 ซม.  ก็จะได้ว่าความสูงของโรงพยาบาลบาล 15 ชั้นนั้นจะพอๆกันกับความสูงของคอนโด The Lofts ที่ 20 ชั้นครับ)

Floor Plan คอนโด The Loft Ekkamai
Floor Plan คอนโด The Loft Ekkamai

ส่วนเรื่องวิวที่มองไปเห็นโรงพยาบาลสุขุมวิทนั้น  ผมลองลากเส้นจากแผนที่เพื่อดูระยะมุมมองคร่าวๆ   ผมเจอว่าส่วนที่มองไปแล้วเห็นโรงพยาบาลคือตรงที่ลากเส้นสีแดงไว้ให้ครับ  เพราะตัวอาคารของโรงพยาบาลนั้นมีระยะถอยร่นจากถนนสุขุมวิทเข้าไปพอควร  เพราะฉะนั้นถ้าซื้อห้องตรงปีกหน้าๆก็จะไม่โดนบังวิวครับ  ยังมองเห็นรถไฟฟ้า BTS ได้อยู่

ส่วนอีกฝั่งที่มีคอนโด Life @ Sukhumvit อยู่  ตรงนี้มุมมันจะหลบกันได้พอดีอย่างที่เล่าไปแล้วตอนต้นครับ

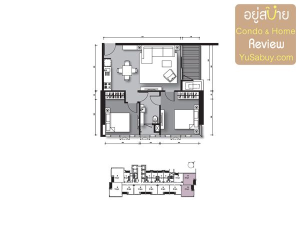
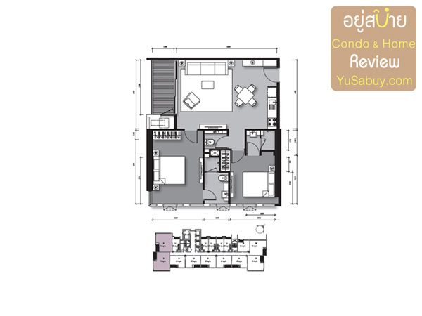
แปลนคอนโด The Loft Ekkamai
แปลนคอนโด The Loft Ekkamai

เอาตำแหน่งห้องมาให้ดูกันครับ

ผังห้องคอนโด The Loft ทางฝั่งเอกมัย
ผังห้องคอนโด The Loft ทางฝั่งเอกมัย
ผังห้องคอนโด The Loft ทางฝั่งพระโขนง
ผังห้องคอนโด The Loft ทางฝั่งพระโขนง

ดูผังโครงการกับตำแหน่งห้องไปแล้ว  ผมพาย้อนกลับไปดูที่ตั้งโครงการจริงๆอีกสักทีครับ  เพื่อจะได้เชื่อมโยงเรื่องตำแหน่งที่ตั้งในหัวได้ชัดเจนขึ้น

ยืนอยู่ในตัวโครงการ มองไปยังโรงพยาบาลสุขุมวิทครับ รูปนี้ถ่ายพาโนราม่าให้เห็นถึงสุดเขตที่ดินเลย
ยืนอยู่ในตัวโครงการ มองไปยังโรงพยาบาลสุขุมวิทครับ รูปนี้ถ่ายพาโนราม่าให้เห็นถึงสุดเขตที่ดินเลย  ตึกสีขาวๆที่อยู่ด้านหน้าตึกใหญ่ก็เป็นตึกของโรงพยาบาลเหมือนกันนะครับ  แต่ส่วนที่หันหน้าไปเจอตึกนี้จะเป็นที่จอดรถ  ไม่ใช่ห้องที่เป็นยูนิตขายครับ
หันไปอีกทางจะเจอคอนโด Life @ Sukhumvit ของ AP
หันไปอีกทางจะเจอคอนโด Life @ Sukhumvit ของ AP

จากนั้นลองดูโมเดลกันสักหน่อย

มุมที่มองมาจากทางเอกมัยครับ
มุมที่มองมาจากทางเอกมัยครับ
ด้านนี้เป็นมุมมองมาจากฝั่งพระโขนง
ด้านนี้เป็นมุมมองมาจากฝั่งพระโขนง
ด้านนี้เป็นมุมมองมาจากฝั่งพระโขนง
ด้านนี้เป็นมุมมองมาจากฝั่งพระโขนง
ยอดอาคารครับ
ยอดอาคารครับ
  • ดูแปลนห้องแต่ละแบบ

แปลนห้องคอนโด The Loft  เอกมัย  แบบสตูดิโอ  28  ตร.ม. และ 1 ห้องนอน 35 ตร.ม.

แปลนแบบสตูดิโอ (รูปซ้าย) ก็เป็นสูตรมาตราฐานทั่วไปครับ  ครัวกับห้องน้ำอยู่ตรงทางเข้า  แต่ดูเหมือนลืมคิดตำแหน่งโต๊ะทานข้าวไปเลย  ดูๆแล้วไม่รู้จะนั่งทานอาหารตรงไหนดีอาจจะต้องมีการสลับตำแหน่งเฟอร์นิเจอร์กันบ้างครับ

ส่วนแปลน 1 ห้องนอน 35 ตารางเมตรนี้จะมีแค่ชั้นละ 1 ห้องครับ  ห้องนี้วางฟังก์ชั่นดูเป็นสัดเป็นส่วนดี  ทางเข้าห้องน้ำนั้นมี Option ให้เลือกว่าจะเอาประตูเปิดเข้าจากทางห้องนอน  หรือจากทางส่วนรับประทานอาหารก็ได้  ถ้าเอาทั้งสองบานก็เพิ่มตังนะครับ  ตรงนี้ถ้าใช้ประตูเข้าห้องน้ำตรงส่วนรับประทานอาหาร  ตำแหน่งของกลอนประตู  2 บานจะชนกันได้ในกรณีที่เปิดประตูห้องเข้ามาครับ  ใช้งานต้องระวังหน่อย

แปลนคอนโด The Loft เอกมัย สตูดิโอขนาด 28 และ 1 ห้องนอนขนาด 35 ตารางเมตร
แปลนคอนโด The Loft เอกมัย สตูดิโอขนาด 28 และ 1 ห้องนอนขนาด 35 ตารางเมตร

แปลนห้องคอนโด The Loft  เอกมัย  แบบ 1 ห้องนอน 45 ตร.ม.

แปลนคอนโด The Lofts แบบ 45 ตารางเมตรนี้เป็นไซส์ขนาดมาตราฐานที่โครงการทำห้องตัวอย่างให้ดูครับ  ลักษณะการจัดฟังก์ชั่นของห้องนอนและส่วน living area ก็คล้ายๆกับห้องแบบ 35 ตารางเมตรครับ  ต่างกันที่พื้นที่ด้านหลังที่เป็นเคาท์เตอร์ครัวกับห้องน้ำ  โดยห้องน้ำจะอยู่ในห้องนอนเลย  แต่สามารถทำประตูเลื่อนปิดกั้นแยกกรณีที่แขกมาแล้วจะได้สามารถเข้าห้องน้ำได้โดยไม่ผ่านห้องนอนครับ  (อ่อ..แต่ประตูเลื่อนนี่เสียตังนะครับ  บานละ 30,000 บาท)  แล้วก็มีพื้นที่ตรงประตูทางเข้าให้พอทำตู้ Built in เก็บของได้พอสมควร   นอกจากนี้อยากให้ลองสังเกตตำแหน่งการวางเครื่องแอร์กับเครื่องซักผ้าด้านนอกครับ  มันวางอยู่ในแนวเดียวกับโซฟาที่นั่งพักผ่อนและมีผนังทึบกั้น  เพราะฉะนั้นเวลานั่งดูทีวีก็จะไม่เห็นส่วนแผงบังแอร์ที่ระเบียงด้านนอก

แปลนคอนโด The Loft 1 ห้องนอน เอกมัย ขนาด 45 ตารางเมตร
แปลนคอนโด The Loft 1 ห้องนอน เอกมัย ขนาด 45 ตารางเมตร

แปลนห้องคอนโด The Loft  เอกมัย  แบบ Duplex  45 ตร.ม. 

แปลนแบบ Duplex นี้ระยะขนาดความกว้างของห้องเท่ากับห้องแบบ Studio 28 ตารางเมตรเลยครับ  ชั้นล่างพื้นที่ 26 ตารางเมตร  ส่วนชั้นบนพื้นที่ 19  ตารางเมตรครับ  รวมๆแล้วก็ 45 ตารางเมตรเท่ากับแบบ 1 ห้องนอนปกติ  เพียงแต่ได้เป็นสเปซ 2 ชั้น ตรงนี้แล้วแต่คนชอบ  ซึ่งแน่นอนว่าแบบ Duplex นั้นถึงจะพื้นที่ 45 ตร.ม. เท่ากันกับแบบ 1 bedroom  แต่ราคาก็แพงกว่าแน่นอนครับ  เพราะถ้าสร้างเป็นพื้นที่ขายเต็มๆจะได้พื้นที่ขาย 52-56 ตารางเมตร  แต่พอทำเป็น Duplex แล้วเหลือ 45 ก็เลยต้องคิดราคาให้มันชดเชยกับพื้นที่ขายที่เสียไปนั่นเอง

แปลนคอนโด The Loft เอกมัย ขนาด 45 ตารางเมตร แบบ Duplex
แปลนคอนโด The Loft เอกมัย ขนาด 45 ตารางเมตร แบบ Duplex

แปลนห้องคอนโด The Loft  เอกมัย  แบบ 2 ห้องนอน  61 ตร.ม.

แปลนห้องคอนโด The Lofts เอกมัย  แบบ 2 ห้องนอนถ้าเป็นขนาด 61 ตร.ม. จะอยู่มุมด้านหลังของอาคารครับ  แปลนนั้นวางมาได้ค่อนข้างลงตัว  ห้องน้ำสามารถเข้าได้จากทั้งห้องนอนใหญ่และด้านนอกครับ  แต่ตำแหน่งวางเครื่องแอร์กับเครื่องซักผ้าไม่ได้อยู่แนวเดียวกับโซฟาเหมือนแบบ 1 ห้องนอน  เวลานั่งดูทีวีก็จะเห็นแผงบังแอร์อยู่ด้วยครับ

แปลนคอนโด The Loft เอกมัย ขนาด 61 ตารางเมตร
แปลนคอนโด The Loft เอกมัย ขนาด 61 ตารางเมตร

แปลนห้องคอนโด The Loft  เอกมัย  แบบ 2 ห้องนอน  74 ตร.ม.

แปลนคอนโด The Lofts  เอกมัย  แบบ 2 ห้องนอนขนาด 74 ตร.ม. จะอยู่มุมด้านหน้าโครงการครับ  เป็นตำแหน่งที่นั่งดูรถไฟฟ้าเพลินแน่นอน  ในด้านฟังก์ชั่นที่แตกต่างจากแบบ 61 ตร.ม. คือมีห้องน้ำเพิ่มขึ้นครับ  ห้องนอนใหญ่นั้นมีห้องน้ำในตัวเลย  ส่วนห้องนอนเล็กมีส่วนอาบน้ำและอ่างล้างหน้าในห้องนอนครับ  ถ้าส่วนโถสุขภัณฑ์จะถูกแยกออกมาต่างหากด้านนอก  ให้แขกสามารถใช้จากด้านนอกได้โดยไม่ต้องเข้าห้องนอนครับ

แปลนคอนโด The Loft เอกมัย ขนาด 74 ตารางเมตร
แปลนคอนโด The Loft เอกมัย ขนาด 74 ตารางเมตร

นอกจากแปลนห้องที่เอามารีวิวให้ดูกันแล้ว  ก็จะเป็นห้องแบบ Penthouse ขนาดใหญ่ไปเลย  อยู่ที่ชั้น 26-27  ขนาดพื้นที่ไปเริ่มที่ 89 – 173  ตารางเมตรครับ

เปิดห้องตัวอย่าง  ดูรีวิวสเปซ

  • “Focus on Space and Dimension”

ห้องที่ให้เป็นแบบ Fully Fitted ครับ  มีเคาท์เตอร์ครัว  แล้วก็ Built in บางชิ้น เช่น พวกตู้เสื้อผ้ามาให้  มีแอร์  แต่ไม่มีพวกเฟอร์นิเจอร์ต่างๆ  ไม่มีพวกชั้นวางทีวี, โต๊ะเขียนหนังสืออะไรพวกนี้ ต้องทำเพิ่มเองครับ

ดูห้องตัวอย่างคอนโด

มุมมองในห้องส่วน Living ครับ
มุมมองในห้องส่วน Living ครับ
ซูมเข้าไปดูส่วน Living ใกล้ๆครับ ระยะฝ้าเพดานห้องจริงอาจจะสูงกว่านี้อีกสักหน่อยนะครับ ในห้องตัวอย่างนี้ดัดแปลงจากตึกแถวเก่า ระยะความสูงถึงฝ้าเพดานเลยต่ำไปนิด
ซูมเข้าไปดูส่วน Living ใกล้ๆครับ ระยะฝ้าเพดานห้องจริงอาจจะสูงกว่านี้อีกสักหน่อยนะครับ ในห้องตัวอย่างนี้ดัดแปลงจากตึกแถวเก่า ระยะความสูงถึงฝ้าเพดานเลยต่ำไปนิด
มองเข้าไปยังทางเดินเชื่อมไปห้องน้ำ ถ้าเลี้ยวขวาไปก็จะเข้าห้องนอนได้ครับ
มองเข้าไปยังทางเดินเชื่อมไปห้องน้ำ ถ้าเลี้ยวขวาไปก็จะเข้าห้องนอนได้ครับ
มองกลับมาจากบริเวณหน้าห้องนอน ถ่ายเพื่อให้เห็นระยะความกว้างของห้องและระยะของสเปซการวางทีวี โต๊ะทานข้าว และเคาท์เตอร์ครัวครับ
มองกลับมาจากบริเวณหน้าห้องนอน ถ่ายเพื่อให้เห็นระยะความกว้างของห้องและระยะของสเปซการวางทีวี โต๊ะทานข้าว และเคาท์เตอร์ครัวครับ
เข้ามาดูในห้องนอนกันครับ
เข้ามาดูในห้องนอนกันครับ
เข้าไปในห้องนอนครับ
เข้าไปในห้องนอนครับ
ดูมุมกว้างๆกัน
ดูมุมกว้างๆกัน
ตู้เสื้อผ้า Built in มาให้เลย
ตู้เสื้อผ้า Built in มาให้เลย
ประตูเลื่อนซึ่งไม่ได้มากับห้องตามมาตราฐานนะครับ ตรงนี้ถ้าใครจะติดเพิ่ม โครงการคิด 30,000 บาทครับ
ประตูเลื่อนซึ่งไม่ได้มากับห้องตามมาตราฐานนะครับ ตรงนี้ถ้าใครจะติดเพิ่ม โครงการคิด 30,000 บาทครับ
ถ้าไม่ติดประตูเลื่อน ก็จะเห็นโล่งๆไปแบบนี้เลยครับ ได้ห้องนอนมีห้องน้ำในตัว
ถ้าไม่ติดประตูเลื่อน ก็จะเห็นโล่งๆไปแบบนี้เลยครับ ได้ห้องนอนมีห้องน้ำในตัว
ระยะปลายเตียง วางโต๊ะหรือติดเฟอร์นิเจอร์ Built in แล้วก็ยังเดินได้อยู่
ระยะปลายเตียง วางโต๊ะหรือติดเฟอร์นิเจอร์ Built in แล้วก็ยังเดินได้อยู่
ถ่ายให้ดูเคาท์เตอร์ Built in สำหรับเป็นโต๊ะทำงาน กับตู้เก็บของและทีวีครับ แต่ตรงนี้ไม่ได้ให้มากับห้อง ต้องทำเองหมดครับ
ถ่ายให้ดูเคาท์เตอร์ Built in สำหรับเป็นโต๊ะทำงาน กับตู้เก็บของและทีวีครับ แต่ตรงนี้ไม่ได้ให้มากับห้อง ต้องทำเองหมดครับ
ออกมาที่ระเบียงกันมั่ง ความกว้างพอตั้งโต๊ะเล็กๆใช้งานได้ครับ
ออกมาที่ระเบียงกันมั่ง ความกว้างพอตั้งโต๊ะเล็กๆใช้งานได้ครับ

เปิดห้องตัวอย่าง  ชมรีวิววัสดุ

  • “Focus on Materials”

หลังจากดูรีวิวเรื่องสเปซเสร็จ  คราวนี้มาดูรีวิวเรื่องวัสดุที่ได้กันครับ  ในภาพรวมต้องบอกว่าคอนโด The Lofts  Ekkamai นั้นจัดวัสดุมาให้ในเกรดดีมากทีเดียว  โดยรวมๆแล้วดูแพงสมราคาครับ  ให้ผิวสัมผัสที่ดี   แต่ต้องบอกอย่างแฟร์ๆว่างานก่อสร้างในห้องตัวอย่างไม่ได้เนี๊ยบนัก  คิดว่าคงรีบทำพอควร  ซึ่งถ้าห้องจริงก่อสร้างเก็บงานเนี๊ยบๆกับวัสดุเกรดประมาณนี้ก็ถือว่าได้มาเต็มที่ทีเดียว

อีกจุดหนึ่งที่น่าสนใจคือพวกวัสดุปิดผิว (finishing) ในห้องที่ซื้อซึ่งเราเลือกเองได้ด้วยครับ  เขาจะมีวัสดุมาให้ 4  ชุด  ที่เลือกโทนสีมาให้แล้ว  ชอบชุดไหนก็เลือกเอาเองได้เลยครับ

รีวิววัสดุครัว The Loft เอกมัย
รีวิววัสดุครัว The Loft เอกมัย
รีวิววัสดุห้องน้ำ The Loft เอกมัย
รีวิววัสดุห้องน้ำ The Loft เอกมัย
รีวิววัสดุั่ทั่วไปและวัสดุปิดผิว (finishing) คอนโด The Loft เอกมัย
รีวิววัสดุั่ทั่วไปและวัสดุปิดผิว (finishing) คอนโด The Loft เอกมัย

ถ่ายโทนสีของวัสดุที่ทำเป็นแบบให้เลือกไว้ 4 ชุดมาให้ดูกันครับ

The Loft Ekkamai-045
โทนสี Brown
The Loft Ekkamai-046
โทนสี White
The Loft Ekkamai-047
โทนสี Grey
The Loft Ekkamai-048
โทนสี Beige

เปิดกระเป๋า  ดูสตางค์

ดูค่าใช้จ่ายในการซื้อคอนโด

ถึงคราวมารีวิวดูเรื่องค่าใช้จ่ายกันบ้างครับ   ราคาเปิดขายของโครงการนั้นอยู่ที่ 3.9  ล้านบาทซึ่งเป็นห้องสตูดิโอ 28 ตร.ม.  ราคาเฉลี่ยของห้องแต่ละประเภทผมลองกดเครื่องคิดเลขดูคร่าวๆ  ก็จะอยู่ในช่วง 140,000 – 185,000 บาท/ตร.ม. ครับ   ในแต่ละชั้นนั้นราคาจะเพิ่มตามความสูงประมาณชั้นละ 2,000 บาท/ตร.ม.  ส่วนราคาห้อง Penthouse  สำหรับคนรวยมีตังเหลือๆซื้อไว้นอนเล่น  ก็จะไปเริ่มที่ 16 ล้านบาทกับห้อง 89 ตร.ม.  และห้องแพงสุดก็อยู่ที่ 31 ล้านบาทกับห้อง 173 ตร.ม. ครับ    ส่วนเรื่องการจองนั้นจะต้องวางเงินเซ็นต์สัญญาถึง 10% ของราคาค่าห้อง  ทำให้บรรดานักเก็งกำไรทั้งหลายอาจจะต้องคิดหลายๆตลบหน่อยนะครับ

ผมลองเลือกห้องมาให้ดูกันนิดหน่อยกับห้องแบบ 1 ห้องนอนและ 2 ห้องนอนครับ  จะได้เห็นช่วงกรอบราคาคร่าวๆ

ราคา ณ วันที่  9 มิถุนายน  2556 

ราคาเริ่มต้น :

1 bedroom    ชั้น 10   แบบ 35 ตร.ม.  ทิศตะวันตกเฉียงเหนือ   ราคา 5,317,375  บาท

1 bedroom    ชั้น 10   แบบ 45 ตร.ม.  ทิศตะวันออกเฉียงใต้    ราคา 6,373,125  บาท

2 bedrooms   ชั้น 9    แบบ 60 ตร.ม.  ด้านหลังอาคารห้องมุม  ราคา 8,466,600  บาท

เงื่อนไขการจอง :

1 bedroom  จอง 50,000 บาท  // เซ็นต์สัญญา 10% ของราคาขายแต่ละยูนิต  // ผ่อนดาวน์ 30 งวด  ยอด 15% ของราคาขายแต่ละยูนิต

ค่าใช้จ่ายอื่นๆ :

ค่าส่วนกลาง                                           40   บาท/ตร.ม.  (ชำระล่วงหน้า 1 ปี)
ค่ากองทุนเริ่มแรก (Sinking Fund)     600 บาท/ตร.ม. (ชำระครั้งเดียว ณ วันโอน)

ประมาณอัตราการผ่อน (คิดจากราคาเริ่มต้นด้านบน) เพื่อให้เห็นกรอบของค่าใช้จ่ายคร่าวๆและนำไปวางแผนประมาณการของแต่ละคนครับ  ถึงไม่ได้ซื้อห้องที่ยกมาเป็นตัวอย่างก็ใช้ตัวเลขได้ :

 บนสมมติฐาน กู้  75% / ดอกเบี้ย 7.5% ต่อปี / ระยะเวลา 30 ปี

1 bedroom   แบบ 35 ตร.ม.   ราคาขาย  5,317,375   บาท  ผ่อนประมาณ 27,711 บาท/เดือน

1 bedroom   แบบ 45 ตร.ม.   ราคาขาย  6,373,125   บาท  ผ่อนประมาณ 33,213 บาท/เดือน

2 bedrooms แบบ 60 ตร.ม.   ราคาขาย  8,466,600 บาท  ผ่อนประมาณ 44,123 บาท/เดือน

 บนสมมติฐาน กู้  75% / ดอกเบี้ย 7.5% ต่อปี / ระยะเวลา 25 ปี

1 bedroom   แบบ 35 ตร.ม.   ราคาขาย  5,317,375   บาท  ผ่อนประมาณ 29,288 บาท/เดือน

1 bedroom   แบบ 45 ตร.ม.   ราคาขาย  6,373,125   บาท  ผ่อนประมาณ 35,103 บาท/เดือน

2 bedrooms แบบ 60 ตร.ม.   ราคาขาย  8,466,600 บาท  ผ่อนประมาณ 46,634 บาท/เดือน

 บนสมมติฐาน กู้  75% / ดอกเบี้ย 7.5% ต่อปี / ระยะเวลา 20 ปี

1 bedroom   แบบ 35 ตร.ม.   ราคาขาย  5,317,375   บาท  ผ่อนประมาณ 31,927 บาท/เดือน

1 bedroom   แบบ 45 ตร.ม.   ราคาขาย  6,373,125   บาท  ผ่อนประมาณ 38,266 บาท/เดือน

2 bedrooms แบบ 60 ตร.ม.   ราคาขาย  8,466,600 บาท  ผ่อนประมาณ 50,837 บาท/เดือน

 บนสมมติฐาน กู้  75% / ดอกเบี้ย 7.5% ต่อปี / ระยะเวลา 15 ปี

1 bedroom   แบบ 35 ตร.ม.   ราคาขาย  5,317,375   บาท  ผ่อนประมาณ 36,739 บาท/เดือน

1 bedroom   แบบ 45 ตร.ม.   ราคาขาย  6,373,125   บาท  ผ่อนประมาณ 44,034 บาท/เดือน

2 bedrooms แบบ 60 ตร.ม.   ราคาขาย  8,466,600 บาท  ผ่อนประมาณ 58,499 บาท/เดือน

 บนสมมติฐาน กู้  75% / ดอกเบี้ย 7.5% ต่อปี / ระยะเวลา 10 ปี

1 bedroom   แบบ 35 ตร.ม.   ราคาขาย  5,317,375   บาท  ผ่อนประมาณ 47,044 บาท/เดือน

1 bedroom   แบบ 45 ตร.ม.   ราคาขาย  6,373,125   บาท  ผ่อนประมาณ 56,385 บาท/เดือน

2 bedrooms แบบ 60 ตร.ม.   ราคาขาย  8,466,600 บาท  ผ่อนประมาณ 74,906 บาท/เดือน

Overview Summary

ด้านการเดินทาง

การเดินทางนั้นค่อนข้างสะดวกทั้งการขับรถและการใช้ระบบขนส่งสาธารณะ  ใช้ BTS  สะดวกมาก  การขับรถถ้าขึ้นไปทางทิศเหนือสามารถไปออกถนนเพชรบุรีตัดใหม่ , พระราม 9 หรือเลียบทางด่วนรามอินทราได้   ถ้ามาทางใต้ก็ไปออกถนนพระราม 4  ซึ่งสามารถไปออกสาทร สีลม โดยเลี่ยงรถติดบนสุขุมวิทขาเข้าได้

ด้านศักยภาพการเติบโตในอนาคต

ทำเลแถวนี้ราคาที่ดินอาจจะไม่ได้แพงในระดับเดียวกับสุขุมวิทตอนต้น  แต่ก็มีมูลค่าสูงกว่าเมื่อเทียบกับการเลยไปยังสุขุมวิทตอนปลายๆครับ  ในย่านเอกมัย – ทองหล่อ  ผมมองว่ามันเป็นพื้นที่มีมูลค่าในตัวเองสูงอยู่แล้ว  เพราะหากเลยจุดนี้ไป  พอพูดชื่อพระโขนง , อ่อนนุช  มูลค่ามันหายไปเยอะพอสมควรทีเดียว  แล้วตรงนี้ก็ค่อนข้างอุดมสมบูรณ์ครับ  มีห้างให้เดิน  มีโรงหนัง  มีร้านอาหาร Chic Chic  รวมถึงผับบาร์พร้อม

ด้านสถาปัตยกรรมและการออกแบบ

ในรูปแบบการใช้องค์ประกอบทางสถาปัตยกรรมนั้นมีลูกเล่นการใช้จังหวะเส้นสายที่น่าสนใจ  ถ้าลองสังเกตดูรูปด้านในแต่ละส่วนจะสะท้อนชัดเจนเลยว่าตำแหน่งนั้นเป็นห้องแบบไหน   ทั้งนี้ก็เนื่องมาจากการเลือกใช้รูปแบบของหน้าต่างและช่องแสงที่แตกต่างกันในห้องแต่ละแบบครับ  ดูแล้วไม่เลียนแบบเดียวกันไปทั้งตึก  ส่วนจุดที่น่าลุ้นคือ Green Wall ที่เป็นผนังที่จอดรถครับ  โดยส่วนตัวอยากรู้ว่าจะประสบความสำเร็จออกมาสวยงามขนาดไหน(แอบลุ้นให้สำเร็จนะ)  เพราะจากประสบการณ์ที่เห็นมา การทำ Green Wall ลักษณะนี้ในประเทศไทยหาที่แบบทำมาแล้วอยู่รอดได้สวยงามเนียนๆตา  มีสภาพดูดีนี่ยากมากครับ  แล้วพวกนี้ต้นทุนค่าดูแลรักษาสูงด้วย

ในด้านการวางผังและแปลนห้อง  แบบสตูดิโอดูจะหลุดๆไปหน่อยเพราะไม่รู้จะนั่งทานข้าวตรงไหน  ส่วนแบบอื่นๆทั้ง 1 ห้องนอน และ 2 ห้องนอน  ผมมองว่าวางแปลนมาได้ค่อนข้างดีครับ  พื้นที่ใช้งานได้สบายๆและเป็นสัดเป็นส่วนดี    ทางด้านวัสดุนั้นก็ต้องบอกว่าให้มาเกรดดีทีเดียว  Facilities ทั้งหมดอยู่บนชั้นดาดฟ้าซึ่งดูจากรูปแล้วก็ทำได้น่าประทับใจดีครับ  ไม่ได้มีประเด็นอะไรที่รู้สึกติดขัดในเรื่องใหญ่ๆ

ด้านตัวเลือกอื่นๆ

ถ้าจะหาคอนโดตัวใหม่ๆมาวัดกันตรงๆเดี๋ยวอาจจะต้องรอ AP เปิดคอนโด Rhythm 42 ในซอยสุขุมวิท 42 หลัง Gateway เอกมัยครับ   ยังไม่รู้เหมือนกันว่า AP จะเคาะราคาออกมาเท่าไหร่  อันนี้ก็น่าติดตามครับ

Score Summary

สุดท้ายก็ขอจบรีวิวด้วยการให้คะแนนเช่นเคยครับ    (อ่านเกณฑ์การให้คะแนนคอนโดที่นี่)

สรุปข้อมูลโครงการ The Loft เอกมัย

ปิดท้ายรีวิวคอนโด The Loft เอกมัย  ของเว็บอยู่สบายไว้เท่านี้นะครับ

สามารถเข้าไปเยี่ยมชม Fan Page ของเรา  ได้ที่  https://www.facebook.com/Yusabuy

สงสัยหรืออยากช่วยเพิ่มเติมข้อมูลตรงไหนที่อยู่สบายรีวิวตกหล่นไป  พิมพ์คุยกันข้างล่างได้เลยครับ

อ่านแล้วมีประโยชน์ช่วยให้ข้อมูล  อย่าลืมกด LIKE ให้ด้วยนะคร้าบบบบบ  ^_____^

[twitter-follow screen_name='yusabuy' show_count='yes']

Leave a Reply

Your email address will not be published. Required fields are marked *

ALL COMMENT (3)
  1. Review ละเอียดมากที่สุดเท่ามี่ผมเคยอ่านมาเลยครับ ข้อมูลเเน่นจริงๆ ^^

    1. ขอบคุณครับ อย่าลืมแวะมาอ่านรีวิวอื่นๆของอยู่สบายกันอีกเรื่อยๆนะครับ ^^

back to top

เราใช้คุกกี้เพื่อพัฒนาประสิทธิภาพ และประสบการณ์ที่ดีในการใช้เว็บไซต์ของคุณ คุณสามารถศึกษารายละเอียดได้ที่ นโยบายความเป็นส่วนตัว และสามารถจัดการความเป็นส่วนตัวเองได้ของคุณได้เองโดยคลิกที่ ตั้งค่า

Privacy Preferences

คุณสามารถเลือกการตั้งค่าคุกกี้โดยเปิด/ปิด คุกกี้ในแต่ละประเภทได้ตามความต้องการ ยกเว้น คุกกี้ที่จำเป็น

ยอมรับทั้งหมด
Manage Consent Preferences
  • คุกกี้ที่จำเป็น
    Always Active

    ประเภทของคุกกี้มีความจำเป็นสำหรับการทำงานของเว็บไซต์ เพื่อให้คุณสามารถใช้ได้อย่างเป็นปกติ และเข้าชมเว็บไซต์ คุณไม่สามารถปิดการทำงานของคุกกี้นี้ในระบบเว็บไซต์ของเราได้

  • คุกกี้สำหรับการวิเคราะห์

    คุกกี้นี้เป็นการเก็บข้อมูลสาธารณะ สำหรับการวิเคราะห์ และเก็บสถิติการใช้งานภายในเว็บไซต์นี้เท่านั้น ไม่ได้เก็บข้อมูลส่วนตัวที่ไม่เป็นสาธารณะใด ๆ ของผู้ใช้งาน

บันทึก