บ้านเคียงฟ้า รีวิวคอนโดหัวหิน โดย YuSabuy
· 4 min readขอเปลี่ยนบรรยากาศไปรีวิวคอนโดหัวเมืองท่องเที่ยวอย่างหัวหินบ้างครับ รีวิวฉบับนี้อยู่สบายพาไปดูคอนโด บ้านเคียงฟ้า หัวหิน ของทางแสนสิริครับ อย่างที่รู้ๆกันว่าช่วงสัก 2-3 ปีที่ผ่านมา แสนสิริเขาพยายามปักธงเป็นเจ้าตลาดคอนโดหัวหินมาตลอด แต่ก็มักจะไปเน้นเป็นคอนโด low rise แบบติดหาดบ้าง ใกล้ๆหาดบ้าง พอมาโครงการบ้านเคียงฟ้า แสนสิริเลยไปเลือกแตกไลน์ออกมาทำเป็นคอนโด high rise โดยเลือกที่ตั้งที่มีต้นทุนที่ดินถูกกว่าที่ดินติดหาดแล้วขายคอนเซ็ปว่ามองเห็นวิวทะเลแทน คอนโดบ้านเคียงฟ้าจะเป็นยังไงวันนี้อยู่สบายพามารีวิวเจาะลึกเช่นเคยครับ
เริ่มจากดูข้อมูลโครงการเบื้องต้นก่อน
ออกเดินทางกันได้แล้ว พิกัดที่ >> 12.5372479,99.9566247 ตามมาเลยครับ
เริ่มเดินทาง ดูทำเล
ตำแหน่งที่ตั้งของคอนโดบ้านเคียงฟ้า หัวหิน กับสำนักงานขายจะอยู่คนละที่กันครับ เพราะตัวโครงการนั้นจะอยู่ตรงต้นทางที่จะลงใต้ไปเขาเต่า แต่สำนักงานขายจะอยู่เลย Market Village ไปหน่อยนึง ใกล้ๆกับ Marrakesh ครับ เพราะจุดตรงนี้คนจะผ่านเยอะกว่าที่ตั้งโครงการ(คือได้คนที่มาเขาตะเกียบด้วย) ถ้าไปตั้งสำนักงานขายที่โครงการเลย ก็อาจจะได้แต่คนที่ผ่านลงใต้อย่างเดียว แถมอยู่ในจุดที่ต้องไปกลับรถมาเข้าถึงลำบากหน่อย ตรงนี้เลยถือเป็นเทคนิคการเลือกที่ตั้งสำนักงานขายที่ดีของทางแสนสิริเขาครับ
ผมเลยขอแยกรีวิวการเข้าถึงโครงการเป็น 2 ช่วง คือไปที่สำนักงานขาย และพาไปชมที่ที่ตั้งจริงๆนะครับ ลองดูจากกราฟฟิกด้านล่างประกอบกัน ซึ่งก็จะเริ่มจากชะอำมาเลยครับ ให้ขับรถตรงตามถนนเพชรเกษมมาเรื่อยๆ จากชะอำมาถึงตลาดหัวหินผมจับระยะทางคร่าวๆก็ประมาณเกือบๆ 20 กิโลเมตรครับ ถนนดี ขับรถสนุกมาก พอเริ่มเข้าตัวเมืองหัวหินก็ตรงมาอย่างเดียวครับ ผ่านตลาด ผ่านวัดหัวหิน ผ่าน Market Village มาเรื่อยๆ พอผ่าน Marrakesh ก็เตรียมชิดซ้ายได้เลย สำนักงานขายติดถนนใหญ่ครับ

แต่พอมาถึงสำนักงานขายแล้ว ผมยังไม่เข้าไปข้างในนะครับ พาขับรถเลยไปดูที่ตั้งของคอนโดจริงๆซะหน่อย เวลามาชมโครงการจะได้นึกภาพกันออกว่าตรงไหนเป็นอะไรยังไง
จากที่ตั้งสำนักงานขายก็ขับเลยไปนิดเดียวครับ ชิดขวาขึ้นละพานเหมือนจะลงใต้ไปทางเขาเต่า แต่พอลงสะพานเสร็จก็เลยไปกลับรถมาครับ เพราะที่ตั้งของคอนโดบ้านเคียงฟ้าที่อยู่สบายพามารีวิววันนี้อยู่ตรงเชิงสะพานเลย

สรุประยะทางจาก คอนโดมิเนียมบ้านเคียงฟ้า หัวหิน ไปสถานที่ท่องเที่ยวต่างๆในบริเวณหัวหินให้ดูกันครับ
ไปตลาดหัวหิน 4.7 กิโลเมตร
ไปตลาดจั๊กจั่น (Cicada Market) 4.2 กิโลเมตร
ไป Market Village 2.9 กิโลเมตร
ไปเพลินวาน 7.2 กิโลเมตร
เล่าให้ฟังคร่าวๆก่อนว่าพื้นที่รอบๆคอนโดบ้านเคียงฟ้านั้นมีอะไรรอบๆบ้าง พื้นที่แถบนี้ยังค่อนข้างโล่งอยู่ครับ ไม่มีอาคารอะไรสูงๆขึ้นมาเลย มีแต่บ้านของคนในพื้นที่เดิมซึ่งอยู่กันเป็นชุมชนครับ ฝั่งด้านหน้าของคอนโดซึ่งอยู่ตรงข้ามถนนเป็นอ่างเก็บน้ำครับ รอบๆเป็นที่โล่ง ด้านทิศเหนือของคอนโดนั้นเป็นบึงน้ำครับ ตรงนี้ในโฆษณาอาจจะบอกว่าเป็นทะเลสาปแต่จากที่ผมไปดูขอเรียกแฟร์ๆว่าบึงแล้วกันนะครับ ยังไงภาพมันก็ไม่ใช่ทะเลสาปแน่ๆ
ใกล้ๆกับคอนโดบ้านเคียงฟ้ามีซอยหัวหิน 112 ซึ่งสามารถไปออกเส้นบายพาสได้ คือกลับกรุงเทพหรือลงใต้ต่อได้โดยไม่ต้องผ่านชะอำหรือตัวเมืองหัวหินเพื่อเลี่ยงรถติดครับ แล้วซอยนี้ก็เป็นทางไปตลาดน้ำหัวหินที่เพิ่งเปิดได้ไม่นานด้วยครับ นอกจากนั้นก็จะเห็น Centennial ซึ่งเป็นพื้นที่ว่างให้เช่าจัดกิจกรรมหรืออีเว้นท์ต่างๆได้


ลองดูมุมกว้างๆจากถนนด้านหน้าครับ

หลังจากดูรอบๆกันเสร็จแล้ว ก็ได้เวลาเข้าไปดูในโครงการกันครับ
เริ่มเปิดประตู รีวิวโครงการ


เปิดผังโครงการ
-
ดูทิศ มองแดด รับลม
ตัวอาคารของคอนโดบ้านเคียงฟ้า หัวหิน นั้นวางตัวทำมุมนิดๆกับแนวทิศตะวันออกและตะวันตกครับ ซึ่งห้องที่หันหน้าด้านทิศใต้ก็จะโดนแดดตลอดวัน เรียกว่ามีด้านร่มกับด้านร้อนชัดเจน ถ้าดูองค์ประกอบของตัวอาคารทั้งสองฝั่งนั้นออกแบบด้วย pattern เดียวกันครับ ไม่ได้มีความแตกต่างกันในเชิงการออกแบบเพื่อป้องกันแสงแดดด้านทิศใต้เท่าไหร่นัก
ถ้าดูจากตำแหน่งของการวางตัวอาคารกับตำแหน่งทะเลทั้งสองด้านก็เปิดรับมุมพอๆกันครับ ไม่ได้มีด้านไหนได้เปรียบกันมาก

-
ดูพื้นที่ส่วนกลางและความเพียงพอในการใช้งาน
โดยปกติแล้วเวลาแสนสิริทำคอนโดแล้วที่ดินบังคับให้ต้องวางตัวอาคารแบบที่ทำให้ด้านใดด้านหนึ่งรับแดดเต็มๆ ส่วนอีกข้างไม่โดนแดด แสนสิริมักจะใช้เทคนิคโดยวางสระว่ายน้ำและ facilities ส่วนกลางไว้ด้านที่รับแดดเยอะๆ แล้วขายคอนเซ็ปได้วิวฝั่งสระแทน แต่โครงการนี้แสนสิริวางตำแหน่งสระว่ายน้ำไว้ด้านทิศเหนือที่ร่มแทน ผมคิดว่าคงเป็นเรื่องการให้น้ำหนักของมุมมองที่ด้านนี้มองเข้าสู่ตัวเมืองหัวหินเป็นหลักครับ
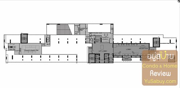
ในส่วน Facilities นั้นจะอยู่ที่ชั้น 5 ครับ มีสระว่ายน้ำ ฟิตเนส แล้วก็ห้องสมุด มีลิฟต์โดยสาร 3 ตัว เฉลี่ยออกมาแล้วได้ 205 ยูนิตต่อลิฟต์ 1 ตัว ตัวเลขนี้ถ้าเป็นคอนโดในกรุงเทพอาจจะดูน้อยไปหน่อย แต่สำหรับคอนโดตากอากาศที่คนไม่ได้มาพร้อมกันหมด เวลาใช้งานจริงน่าจะโอเคอยู่ครับ แล้วก็มีลิฟต์เซอร์วิสกับลิฟต์ดับเพลิงแยกต่างหากอีก 1 ตัวครับ ส่วนที่จอดรถนั้นมี 185 คัน คิดเป็นประมาณ 30% ครับ


-
ดูรายละเอียดและตำแหน่งห้องต่างๆในผังโครงการ
ล่างล่างสุด lobby จะอยุ่ด้านหน้าโครงการครับ และชั้น 2-4 จะเป็นที่จอดรถ

พอมารีวิวดู Floor Plan ชั้นมาตราฐานทั่วไป (ชั้น 6-17) จะเห็นว่าห้องส่วนใหญ่ที่ทำออกมาเป็นแบบสตูดิโอซะเยอะ โดยจะมีห้องแบบ 2 ห้องนอนอยู่ที่บริเวณหัวกับท้ายอาคารเท่านั้นครับ

สำหรับชั้นสูงขึ้นมาในชั้น 20-26 ห้องแบบ 2 ห้องนอนด้านหน้าจะถูกยุบรวมกันแล้วขายเป็นแบบ 3 ห้องนอนครับ ห้องตรงนี้น่าจะเป็นจุดที่วิวดีที่สุดของโครงการแล้ว เพราะเห็นทะเลเต็มๆและติดด้านนอกถึง 3 ด้านครับ (แปลนชั้น 18-19 ที่ไม่ได้ใส่ไว้ให้ก็เป็นลักษณะเดียวกันนี้ครับ เพียงแต่จะลดจำนวนห้องสตูดิโอลง 2 ห้อง และใส่ห้องแบบ 2 ห้องนอนเพิ่มเข้าไปแทนแค่นั้นเอง)

หลังจากดูแปลนรวมกันไปแล้ว ผมพากลับไปยืนดูในที่ตั้งโครงการอีกที เพื่อจะได้นึกภาพตามออกครับ



ดูที่ดินแล้วกลับไปดูโมเดลอีกที จะได้นึกจินตนาการภาพตามได้ครับ


-
ดูแปลนห้องแต่ละแบบ
แปลนห้องคอนโดบ้านเคียงฟ้า หัวหิน แบบสตูดิโอ 30.54 ตร.ม. และแปลนสตูดิโอแบบ 32.53 ตร.ม.
แปลนห้องไซส์มาตราฐานที่มีเยอะที่สุดของโครงการคือห้องสตูดิโอขนาด 30.54 ตร.ม. ในรูปซ้ายครับ ข้อแตกต่างจากแปลนแบบสตูดิโอทั่วๆไปคือส่วนห้องน้ำและส่วนพื้นที่ครัวจะแยกออกไปอยู่รวมกันด้านข้างครับ โดยส่วนมากเราจะเห็นแปลนแบบสตูดิโอจะทำหน้าแคบๆแล้วเน้นพื้นที่ทางแนวลึกมากกว่า การที่เอาพื้นที่ห้องน้ำกับครัวแยกออกไปก็ทำให้ได้แบบห้องสตูดิโอที่หน้ากว้างขึ้นครับ คล้ายๆห้อง 1 bedroom เพียงแต่ไม่มีฉากกั้นมาให้
ส่วนรูปทางด้านขวามือนั้นเป็นห้องแบบสตูดิโอเหมือนกันแต่พื้นที่จะมากกว่านิดหน่อย และมีแค่ชั้นบนๆ ชั้นละห้องเดียวครับ เป็นตำแหน่งที่ติดกับห้องแบบ 3 ห้องนอนนั่นเอง ซึ่งห้องสตูดิโอแบบนี้จะหันหน้าไปทางทิศใต้เท่านั้น

แปลนห้องคอนโดบ้านเคียงฟ้า หัวหิน แบบ 2 ห้องนอน 55.64 – 62.76 ตร.ม.
แปลนห้องแบบ 2 ห้องนอนของคอนโดบ้านเคียงฟ้านั้นมีหลายขนาดมาก แต่จะแตกต่างกันแค่ขนาดของห้องแต่ละห้องครับ ด้านการวางตำแหน่งฟังก์ชั่นการใช้งานเหมือนกันหมด ด้วยความที่ห้องแบบ 2 ห้องนอนนี้อยู่ตรงมุมอาคารเกือบทั้งหมด ก็จะทำให้เห็นวิว 2 ด้าน แต่จะไม่มีจุดไหนที่มีกระจกเข้ามุมเพราะติดผนังโครงสร้างของอาคาร ตรงนี้น่าเสียดายเหมือนกันอุตส่าห์เป็นห้องมุมแถมยังขายคอนเซ็ปวิวมุมสูงด้วยถ้ามีกระจกเข้ามุมน่าจะเนียนตากว่านี้ ส่วนแปลนรวมๆก็จัดได้ลงตัวดีครับ

แปลนห้องคอนโดบ้านเคียงฟ้า หัวหิน แบบ 3 ห้องนอน 97.03 ตร.ม.
แปลนคอนโดบ้านเคียงฟ้า หัวหิน แบบ 3 ห้องนอนจะมีขนาดเดียวครับ และอยู่ในจุดที่วิวสวยที่สุดของโครงการ นั่นคือหน้าตึกเลยอย่างที่เล่าไปแล้ว โดยตำแหน่งของห้องนอนทั้ง 3 ห้องนั้นจะหันหน้าไปทางตัวเมืองหัวหิน แต่จุดที่ผมมองว่าดีที่สุดคือตำแหน่งของส่วนพักผ่อนและส่วนรับประทานอาหารครับ ออกแบบเป็นกระจกเข้ามุมซึ่งมุมตรงนี้จะมองเห็นทะเลตรงๆเลย เพราะตำแหน่งส่วนพักผ่อนนี้จะตั้งฉากกับวิวทะเลเลย

เปิดห้องตัวอย่าง ดูรีวิวสเปซ
-
“Focus on Space and Dimension”
ห้องที่คอนโดบ้านเคียงฟ้า ให้มาเป็นแบบ Fully Furnished ครับ มีเตียง ตู้ เคาท์เตอร์ครัว โซฟา ชั้นวางทีวี และโต๊ะทานข้าวมาให้ แต่ไม่มีวอล์เปเปอร์ครับ ห้องตัวอย่างที่สำนักงานขายนั้นมีแบบสตูดิโอกับแบบ 2 ห้องนอนครับ เราไปรีวิวมาให้ดูกันทั้ง 2 ห้องเลย
ห้องตัวอย่างคอนโดบ้านเคียงฟ้า หัวหิน แบบสตูดิโอ







ห้องตัวอย่างคอนโดบ้านเคียงฟ้า หัวหิน แบบ 2 ห้องนอน
















เปิดห้องตัวอย่าง ชมรีวิววัสดุ
-
“Focus on Materials”
หลังจากดูรีวิวเรื่องสเปซเสร็จ คราวนี้มาดูรีวิวเรื่องวัสดุที่ได้กันครับ ในภาพรวมต้องบอกว่าวัสดุของคอนโดบ้านเคียงฟ้า นั้นให้มากลางๆครับ ใช้งานได้แต่ไม่ได้ดูหรูหราหรือดูแพงอะไร ผมแยกรีวิววัสดุเป็น 3 ส่วนเพื่อความดูง่ายเช่นเคย คือรีวิววัสดุครัว, รีวิววัสดุห้องน้ำ และรีวิววัสดุทั่วไปกับวัสดุปิดผิว (finishing) ครับ



เปิดกระเป๋า ดูสตางค์
คอนโดบ้านเคียงฟ้านั้นแสนสิริทำราคาเปิดขายมาด้วยตัวเลขน่าดึงดูดที่ 1.8 ล้านครับ แต่ตอนที่ผมไปรีวิวนั้นห้องราคาล่างๆก็ขายไปแล้วครับ ราคาเริ่มต้นจึงขึ้นไปอยู่ประมาณ 2.0 ล้านบาท สำหรับห้องสตูดิโอ ส่วนแบบ 2 ห้องนอนด้านหน้านั้นหมดแล้วครับ เหลือแต่ด้านหลัง ส่วน 3 ห้องนอนที่ทำมาไม่เยอะนั้นขายหมดแล้ว
ราคา ณ วันที่ 15 มิถุนายน 2556
ราคาเริ่มต้น :
Studio ห้อง 011025 ชั้น 10 แบบ 30.54 ตร.ม. ทิศใต้ มองไปเขาเต่า ราคา 2,014,800 บาท
Studio ห้อง 011022 ชั้น 10 แบบ 31.17 ตร.ม. ทิศเหนือ มองไปตัวเมืองหัวหิน ราคา 2,099,100 บาท
2 bedrooms ห้อง 010709 ชั้น 7 แบบ 56.41 ตร.ม. มุมด้านหลัง ราคา 3,300,700 บาท
เงื่อนไขการจอง :
Studio จอง 15,000 บาท // เซ็นต์สัญญา 30,000 // ผ่อนดาวน์ 17 งวด งวดละ 999 บาท (Bullet งวดละ 10,000 จำนวน 4 งวด)
2 bedrooms จอง 20,000 บาท // เซ็นต์สัญญา 50,000 // ผ่อนดาวน์ 17 งวด งวดละ 2,999 บาท (Bullet งวดละ 30,000 จำนวน 4 งวด)
ค่าใช้จ่ายอื่นๆ :
ค่าส่วนกลาง 45 บาท/ตร.ม. (ชำระล่วงหน้า 1 ปี)
ค่ากองทุนเริ่มแรก (Sinking Fund) 500 บาท/ตร.ม. (ชำระครั้งเดียว ณ วันโอน)
ประมาณอัตราการผ่อน (คิดจากราคาเริ่มต้นด้านบน) เพื่อให้เห็นกรอบของค่าใช้จ่ายคร่าวๆและนำไปวางแผนประมาณการของแต่ละคนครับ ถึงไม่ได้ซื้อห้องที่ยกมาเป็นตัวอย่างก็ใช้ตัวเลขคร่าวๆได้ :
บนสมมติฐาน กู้ 95% / ดอกเบี้ย 7.5% ต่อปี / ระยะเวลา 30 ปี
Studio แบบ 30.54 ตร.ม. ราคาขาย 2,014,800 บาท ผ่อนประมาณ 13,300 บาท/เดือน
Studio แบบ 31.17 ตร.ม. ราคาขาย 2,099,100 บาท ผ่อนประมาณ 13,856 บาท/เดือน
2 bedrooms แบบ 56.41ตร.ม. ราคาขาย 3,300,700 บาท ผ่อนประมาณ 21,788 บาท/เดือน
บนสมมติฐาน กู้ 95% / ดอกเบี้ย 7.5% ต่อปี / ระยะเวลา 25 ปี
Studio แบบ 30.54 ตร.ม. ราคาขาย 2,014,800 บาท ผ่อนประมาณ 14,056 บาท/เดือน
Studio แบบ 31.17 ตร.ม. ราคาขาย 2,099,100 บาท ผ่อนประมาณ 14,645 บาท/เดือน
2 bedrooms แบบ 56.41ตร.ม. ราคาขาย 3,300,700 บาท ผ่อนประมาณ 23,028 บาท/เดือน
บนสมมติฐาน กู้ 95% / ดอกเบี้ย 7.5% ต่อปี / ระยะเวลา 20 ปี
Studio แบบ 30.54 ตร.ม. ราคาขาย 2,014,800 บาท ผ่อนประมาณ 15,323 บาท/เดือน
Studio แบบ 31.17 ตร.ม. ราคาขาย 2,099,100 บาท ผ่อนประมาณ 15,964 บาท/เดือน
2 bedrooms แบบ 56.41ตร.ม. ราคาขาย 3,300,700 บาท ผ่อนประมาณ 25,103บาท/เดือน
บนสมมติฐาน กู้ 95% / ดอกเบี้ย 7.5% ต่อปี / ระยะเวลา 15 ปี
Studio แบบ 30.54 ตร.ม. ราคาขาย 2,014,800 บาท ผ่อนประมาณ 17,633 บาท/เดือน
Studio แบบ 31.17 ตร.ม. ราคาขาย 2,099,100 บาท ผ่อนประมาณ 18,371 บาท/เดือน
2 bedrooms แบบ 56.41ตร.ม. ราคาขาย 3,300,700 บาท ผ่อนประมาณ 28,887 บาท/เดือน
บนสมมติฐาน กู้ 95% / ดอกเบี้ย 7.5% ต่อปี / ระยะเวลา 10 ปี
Studio แบบ 30.54 ตร.ม. ราคาขาย 2,014,800 บาท ผ่อนประมาณ 22,579 บาท/เดือน
Studio แบบ 31.17 ตร.ม. ราคาขาย 2,099,100 บาท ผ่อนประมาณ 23,523 บาท/เดือน
2 bedrooms แบบ 56.41ตร.ม. ราคาขาย 3,300,700 บาท ผ่อนประมาณ 36,989 บาท/เดือน
Overview Summary
ด้านการเดินทาง
อยู่บนถนนเพชรเกษม การเดินทางไปนั้นไม่ยาก แต่จะลำบากตรงต้องมากลับรถเข้าคอนโด และจากตัวคอนโดเองถ้าจะเข้าตัวเมืองหัวหิน จะลำบากนิดนึงเพราะจะต้องเลี้ยวออกจากคอนโดแล้วตัดขึ้นสะพานเลย ซึ่งต้องขับรถกันระวังๆหน่อย จริงๆถ้านับจากตำแหน่งที่ตั้งของคอนโดจริงๆ อาจจะต้องไปกลับรถวนใต้สะพานแล้วมากลับรถอีกรอบเพื่อขึ้นสะพาน(ฟังดูงงๆไหมครับ ^^”) เห็นทางแสนสิริบอกว่าเทศบาลจะตัดถนนเพิ่มจากแถวปากซอยหัวหิน 112 ทำให้บ้านเคียงฟ้าจะสามารถขึ้นสะพานได้สะดวกขึ้น ตรงนี้ยังไม่แน่ใจข้อมูลเหมือนกันครับ
ด้านศักยภาพการเติบโตในอนาคต
ช่วง 2-3 ปีหลังที่ผ่านมา คอนโดแถวหัวหินเติบโตแบบก้าวกระโดดมาก เดี๋ยวนี้คนกรุงเทพไปหัวหินเลยมีทางเลือกของที่พักมากมาย ทั้งพักโรงแรม พักคอนโดของตัวเองหรือคอนโดที่มีคนปล่อยเช่า ผมคงไม่กล้าฟันธงว่าภาพในอนาคตของหัวหินจะเป็นยังไง แต่เห็นแข่งกันสร้างคอนโดขนาดนี้ในใจลึกๆยังแอบคิดว่ามันจะ over supply อยู่เหมือนกัน แต่อันนี้เป็นมุมมองของผมคนเดียวนะครับ ทางแสนสิริเขาก็ยืนยันว่ามี Demand เหลืออยู่ อันนี้ก็ต้องลองดูกันต่อไป เว้นแต่ถ้ารถไฟความเร็วสูงมาถึง คงไม่ได้ใช้แค่ขนผักแต่ก็น่าจะทำให้เมืองหัวหินเติบโตแบบก้าวกระโดดอีกครั้ง
ด้านสถาปัตยกรรมและการออกแบบ
การออกแบบสถาปัตยกรรมของคอนโดบ้านเคียงฟ้าไม่ได้มีลักษณะเฉพาะตัวที่สะท้อนความเป็นคอนโดตากอากาศเท่าไหร่ครับ หน้าตาเป็นคอนโดมิเนียมแบบ Modern ในเมืองทั่วๆไป แต่ด้วยการเลือกที่ดินก็ทำให้สามารถทำราคาขายมาได้ในตัวเลขที่เลือกซื้อได้ง่ายขึ้นเมื่อไปเทียบกับตัวเลือกอื่นๆในตลาด เรื่องสาธารณูปโภคต่างๆนั้นถือว่าพอมีแต่ก็ไม่ได้โดดเด่นมาก การเลือกใช้วัสดุก็กลางๆตามราคาครับ
ด้านตัวเลือกอื่นๆ
คอนโดในหัวหินมีตัวเลือกให้เปรียบเทียบกันเพียบเลยทั้ง high rise , low rise ไล่มาตั้งแต่ชะอำจนมาถึงบ้านเคียงฟ้าก่อนที่จะขาดช่วงไปพัฒนาแถวๆเขาเต่าครับ เรียกว่ามีคอนโดหลากหลายระดับราคา หลากหลายทำเล คงเลือกมาเปรียบเทียบแบบชนกันตรงๆลำบากเพราะอาณาบริเวณกว้างมาก ไม่สามารถตีวงเป็นโซนๆได้แบบคอนโดในเมืองครับ ตรงนี้เลยขอข้ามไป
Score Summary
สุดท้ายก็ขอจบรีวิวด้วยการให้คะแนนเช่นเคยครับ แต่การให้คะแนนคอนโดตากอากาศนี้ผมจะไม่ได้อ้างอิงเกณฑ์การให้คะแนนคอนโดแบบเดียวกับที่ให้คะแนนรีวิวคอนโดในกรุงเทพฯนะครับ เพราะในแง่การเป็นคอนโดมิเนียมตากอากาศ ปัจจัยหลายๆอย่างที่ใช้ในการพิจารณาเลือกซื้อมันแตกต่างกันออกไปจากคอนโดในเมือง เช่น การอยู่ใกล้แหล่งความเจริญที่เป็น Hub ไม่ได้แปลว่าเป็นจุดแข็งหรือข้อได้เปรียบเสมอไป ทั้งนี้ขึ้นอยู่กับการวางตำแหน่งการตลาดและกลุ่มลูกค้าเป้าหมายด้วย (ถึงอยู่ไกลออกมาแต่วิวสวย ธรรมชาติดีก็อาจจะเป็นจุดขายได้ ระยะการเดินทางจึงไม่ได้เป็นปัจจัยหลักอย่างเดียวในการพิจารณา)
ปิดท้ายรีวิวคอนโดบ้านเคียงฟ้า หัวหิน ของเว็บอยู่สบายไว้เท่านี้นะครับ
สามารถเข้าไปเยี่ยมชม Fan Page ของเรา ได้ที่ https://www.facebook.com/Yusabuy
สงสัยหรืออยากช่วยเพิ่มเติมข้อมูลตรงไหนที่อยู่สบายรีวิวตกหล่นไป พิมพ์คุยกันข้างล่างได้เลยครับ
อ่านแล้วถ้าเห็นว่ารีวิวมีประโยชน์ช่วยให้ข้อมูล อย่าลืมกด LIKE ให้ด้วยนะครับ ^_____^
[twitter-follow screen_name='yusabuy' show_count='yes']





การมีบ้านอยู่ริมทะเล ได้ยินมาว่ามีประโยชน์มากกว่านั้นน่ะ เพราะมันช่วยรักษาโรคได้หลายอย่างเลย สังเกตุไหมเวลาไปทะเลทำไม ถึงหายเหนื่อยล้า จากการที่ได้ไปพักตากอากาศ เพราะทั้งแสงแดด ลมน้ำทะเล ล้วนมีส่วนบำบัดร่างกายของเราทั้งสิ้นเลยค่ะ เราเองก็ชอบไปพักที่ บ้านแสนงาม คอนโดแสนสิริ ที่หัวหิน ซื้อไว้ เพราะมัน ใกล้กับทะเลมาก ๆเลย ลองเข้าไปดูวิวกันเลย https://www.youtube.com/watch?v=KL2uSnUKIQM
ใครอยากมีบ้านพักตากอากาศแถบหัวหิน
โทรคุยกันได้ค่ะ โทร.089-200-9591
มีห้องทางด้านตะวันออก ด้านมองเห็นทะเลเต็มๆค่ะ
1น. 2น. 3นอน